Casa singola In Vendita a Comano Terme


445.050 €
724 m2
8 Camere
8 Bagni
1 Box
UFFICI IN TRENTO
Consulenti in Aste e Fallimenti Immobiliari con Licenza 115 TULPS & Studio Tributaristi (A.N.CO.T.) Sartori dott. Luca iscriz. n°4806 :

Sei interessato all’immobile? Scopri subito tutti i dettagli! Ti possiamo fornire la documentazione relativa alle ipoteche, al pignoramento, al legale che ha avviato la procedura esecutiva di vendita forzata, alla banca, alla cessionaria o al privato che ha avviato l’esecuzione.

SOCIETA’ AUTORIZZATA A SVOLGERE LE ATTIVITA’ INDICATE DAL MINISTERO DELL’INTERNO E DALLE LEGGI DI PUBBLICA SICUREZZA – LICENZA 115 T.U.L.P.S CIRCOLARE NR 557/PAS 6909 DEL 10/01/11

Operiamo anche nella gestione di sofferenze bancarie, che consentono di accedere ad operazioni immobiliari con acquisto di posizioni garantite da immobili anche al 40–50% in meno rispetto al reale valore di mercato. Info riservate in ufficio.

DESCRIZIONE IMMOBILE:

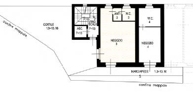
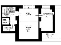
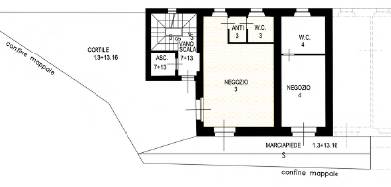
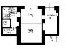
Struttura residenziale con 7 appartamenti, box, negozio e ripostiglio, a Comano Terme, Frazione Ponte Arche, Via G. Marconi 26. Superficie commerciale totale indicativa: 645 mq

Operiamo anche nella gestione di sofferenze bancarie, che consentono di accedere ad operazioni immobiliari con acquisto di posizioni garantite da immobili anche al 40–50% in meno rispetto al reale valore di mercato. Info riservate in ufficio.
Caratteristiche principali
Codice
TN 27/24 21/05/26 L 5
Città
Comano Terme
Categoria
Casa singola
Locali
23,5
Camere
8
Bagni
8
Mq
724
Box
1
Mq Box
31
Classe energetica
G
Stato Immobile
Buono
Grado
Medio
Posizione
Centro Storico
Panorama
Vista Aperta
Orientamento
Nord Ovest Sud Est
Lati Liberi
4
Giardino
Cortile
Arredi
Possibilità
Tipo Cucina
Angolo Cottura
Riscaldamento
Autonomo
Tipo Riscaldam.
Caldaia
Tipo Impianto
Radiatori
Fonte Energetica
GPL
Acqua Calda
Autonoma
Raffrescamento
No
Infissi
Legno Doppio Vetro
Serramenti
Buono
Persiana
Tapparella Legno
Pavim. Giorno
Ceramica
Pavim. Notte
Parquet
Pavim. Cucina
Ceramica
Pavim. Bagno
Ceramica
Pavimento
Cemento
Tipo Saracinesca
Manuale
Accesso Disabili
Nessuna Barriera
Accesso interno disabili
Pieno accesso
Isolamento
Non presente
Accessori
Ascensore, Camino, Rete Dati
Mappa
Piazza del Mercato 6, Comano Terme (TN)
Cookie preference