Laboratorio In Vendita a Castel Ivano


148.500 €
260 m2
1 Bagni
4 Posti auto
UFFICI IN TRENTO
Consulenti in Aste e Fallimenti Immobiliari con Licenza 115 TULPS & Studio Tributaristi (A.N.CO.T.) Sartori dott. Luca iscriz. n°4806 :

Sei interessato all’immobile? Scopri subito tutti i dettagli! Ti possiamo fornire la documentazione relativa alle ipoteche, al pignoramento, al legale che ha avviato la procedura esecutiva di vendita forzata, alla banca, alla cessionaria o al privato che ha avviato l’esecuzione.

SOCIETA’ AUTORIZZATA A SVOLGERE LE ATTIVITA’ INDICATE DAL MINISTERO DELL’INTERNO E DALLE LEGGI DI PUBBLICA SICUREZZA – LICENZA 115 T.U.L.P.S CIRCOLARE NR 557/PAS 6909 DEL 10/01/11

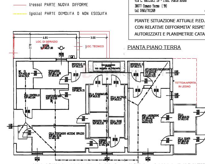
DESCRIZIONE IMMOBILE:

Edificio rurale adibito a laboratorio, con cortile circostante e terreni agricoli pertinenziali, sviluppato su due livelli e così costituito: a piano terra zona lavorazione, celle frigo, sala controllo e servizi igienici; piano sottotetto. L’edificio è circondato per mq. 2.768,90 da terreni pertinenziali con cortili pianeggianti posti su due livelli, a sud ed est dell’edificio. Presenti altri terreni in pendenza a valle dell’edificio, occupati quasi per intero da vegetazione boschiva. L'immobile è suddiviso come segue :
1. Piano terra :
Zona di lavorazione.
Diverse celle frigorifere.
Sala controllo.
Servizi igienici.
o Locali di servizio nella parte nord-ovest.
o Cortile pertinenziale con posti auto esterni.
2. Piano sottotetto :
o Sottotetto inutilizzato e inaccessibile.
Terreni pertinenziali circostanti l'edificio
1. Cortili pianeggianti :
o Superficie catastale complessiva di 2.473 mq.
o Posizionati su due livelli, a sud ed est dell’edificio.
o Presenza di due tettoie in legno in precarie condizioni.
o Recinti per allevamento struzzi (non più utilizzati).
o Legnaia abusiva.
o Alveari ad uso hobbistico
2. Terreni in pendenza a valle :
o Superficie catastale complessiva di 2.959 mq.
o Occupati quasi interamente da vegetazione boschiva.
o Presenza di una tettoia in legno
o Terreno agricolo
1. Terreno a monte dell'edificio :
o Superficie catastale complessiva di 2.687 mq.
o Lieve pendenza con esposizione verso sud.
o Installazione di serre con struttura metallica leggera (utilizzate in passato per la coltivazione di piccoli frutti).
o Attualmente utilizzate per coltivazione privata (fagiolini).
o Dotato di impianto di irrigazione con locale tecnico ubicato all’interno dell’edificio

Ref. Custode Giudiziario

Caratteristiche principali
Codice
TN 25/24 13/01/26 L 1
Città
Castel Ivano
Categoria
Laboratorio
Locali
5
Bagni
1
Mq
260
Posti auto
4
Classe energetica
Non classificabile
Stato Immobile
Mediocre
Grado
Economico
Posizione
Montagna
Panorama
Vista Aperta
Orientamento
Nord Ovest Sud Est
Lati Liberi
4
Riscaldamento
Autonomo
Tipo Riscaldam.
Caldaia
Fonte Energetica
GPL
Acqua Calda
Autonoma
Raffrescamento
No
Infissi
Legno
Serramenti
Mediocre
Persiana
Tapparella Legno
Pavim. Bagno
Ceramica
Pavimento
Resina
Destinazione
Artigianale
Accesso Disabili
No
Accesso interno disabili
Parziale
Stato terreno
Libero
Isolamento
Non presente
Isolamento termico
Nessuno
Isolamento acustico
Nessuno
Accessori
Camino
Mappa
Relle , Castel Ivano (TN)
Cookie preference